Receive for Free - Discover & Explore eNewsletter monthly with advance notice of special offers, packages, and insider savings from 10% - 30% off Best Available Rates at selected hotels.
venues & services
Indoor Venues
Mid-Pacific Conference Center
- Over 65,000 sq ft of elegant and flexible function space, and is considered the premier meeting center of the Pacific.
- The largest convention, meeting and banquet facility in a resort setting in Hawaii.
- Exquisite, contemporary decor and priceless artwork have made it the leading site for many national and international meetings, as well as host to presidents, heard of state, kings, and queens.
- Features the Coral Ballroom which provides 27,054 sq ft of flexible space
- Offers the South Pacific Ballroom, adding another 5,848 sq ft and the smaller Sea Pearl Suites and the Nautilus Suites providing additional meeting and breakout rooms.
View Floor Plan
View Capacity Chart
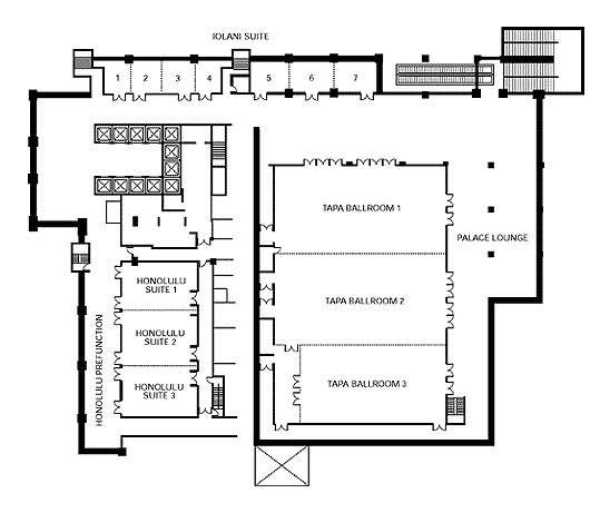
Tapa Conference Center
- Located in the largest guest tower, the Tapa Tower.
- Features the 16,536 sq ft Tapa Ballroom and adjacent Palace Lounge.
- The Honolulu Suite and 'Iolani Suite add ten breakout rooms for smaller meetings and events.
- Furnished with state-of-the-art sound and lighting systems and chandeliers that were specifically designed for the ballroom. Three unique chandeliers provide lighting that can bend and move various colors and allow for controlled dimming and adjusting for light levels to set the appropriate mood for any function or performance.
View Floor Plan
View Capacity Chart
Kalia Executive Conference Center
- The most exclusive meeting facility, perfect for meetings requiring intimate, personal service or greater privacy such as executive board meetings or other meetings of distinction.
- Offers over 4,600 sq ft of meeting space, and provides five separate meeting rooms, including the Ilima Boardroom, a sophisticated executive space that provides superior, state-of-the-art technology and features a SMART Board, interactive whiteboard that can turn computers and projectors into powerful tools for teaching, collaborating, and presenting.
- The Hibiscus and the Kahili meeting rooms can both be divided into two smaller rooms.
- The meeting rooms feature beautiful open-air lanais adding even greater ambiance and sophistication to meetings.
- Connects to the Mid-Pacific Conference Center for additional space.
View Floor Plan
View Capacity Chart
Rainbow Suite and Patio
- Located in the beachfront Rainbow Tower
- The Rainbow Suite can be divided into three separate rooms, and are ideal for smaller, elegant receptions and parties.
- Each room faces the serene blue Duke Kahanamoku Lagoon, and guests can enjoy spectacular views of the beach and sunset.
- The adjoining Rainbow Patio is the perfect setting for a pre-function cocktail party.
View Floor Plan
View Capacity Chart
Outdoor Venues
The Great Lawn
- 26,435 sq ft of Outdoor Lawn
- Breathtaking views of Waikiki Beach and the Duke Kahanamoku Lagoon
- Can accommodate up to 2,000 guests for a banquet or lavish luau, and 2,500 guests for a reception
- Perfect location for spectacular evening events
The Great Lawn and Duke Kahanamoku Lagoon
- Unsurpassed group-friendly venue with unique history and natural features including Duke's Beach, Duke’s Lagoon, and Waikiki’s only private pier.
- Ample space and extensive experience to stage theme events.
- Team building beach competitions, dazzling video effects to music, classic days of Elvis and Blue Hawaii, or boat days with Duke.
- Customized events for attendees or spouse programs.
- Gross square feet is 26,435.
- Usable square feet is 24,500.
Village Green
- Surrounded by lush tropical gardens, gentle waterfalls, and an adjacent koi pond
- Caters to groups ranging from 200 guests banquet-style to 250 for receptions
- Centrally located near the Wedding Capel, Tapa Pool, and the Main Lobby
Poolside and Beachfront Events
- The oceanfront Super Pool area is beautifully-landscaped with lava rocks, exotic flora and waterfalls, and can accommodate up to 600 guests.
- The Tapa Pool deck is surrounded by tropical gardens and can accommodate up to 350 guests.
- Waikiki Beach offers pristine beach settings suitable for outdoor sporting events and team building activities.


